Beschreibung & Ausstattung

Das Objekt bietet auf 8 Etagen moderne Büroflächen, teile mit Terrasse oder Balkonen.

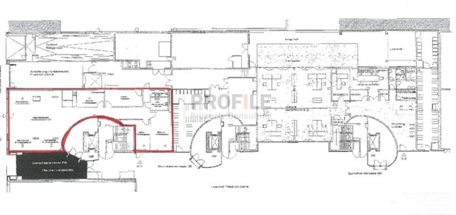
Die hier angebotene Fläche befindet sich im Erdgeschoss des Hauses.

Lage

Das Objekt ist nur wenige Schritte vom Bahnhof Friedrichstraße gelegen und befindet sich damit in zentraler Lage in Berlin Mitte.

Einzelhandel und gastronomische Angebote sind in der Umgebung reichlich vorhanden.

Die Anbindung an den ÖPNV ist hervorragend.

Die dargestellte Position der Immobilie ist nur eine ungefähre Angabe.

Expose anfordern

Direktanfrage

Wir bitten Sie uns für die Übersendung weiterer Informationen zu dem Objekt Ihre vollständige Geschäftsadresse sowie ihr geplantes Business Konzept mitzuteilen. Alle Ihre Daten werden streng vertraulich behandelt und dienen lediglich zur Erstellung Ihres Angebots.

Adresse:
Nachricht:
Dateiupload (PDF maximal 8MB)

Team Profile

E-Mail: info@profile-property.de
Telefon: +49 (0) 30 212 33 777
Fax: +49 (0) 30 212 33 771
Adresse: Bauhofstr. 6, 10117 Berlin
Homepage: www.profile-property.de