Beschreibung & Ausstattung

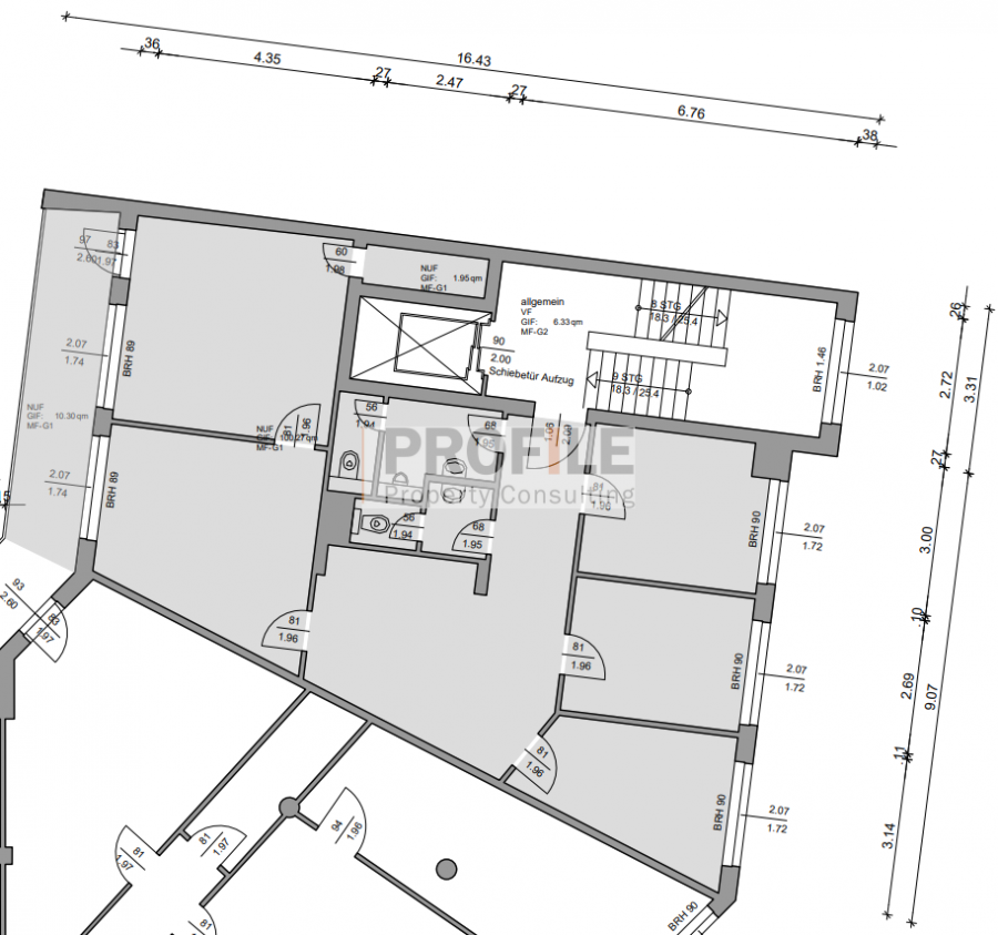
Das Das Areal besteht aus einem 7-geschossigen Neubau aus dem Jahre 1998 und einem Altbau mit wunderschön erhaltener Klinkerfassade. Der Neubau, ein charakteristisches Eckgebäude, besitzt Anschluss an drei verschiedene Kommunikationsnetzwerke, ist flächendeckend KAT7-Verkabelt und barrierefrei zugänglich. Getrennte Sanitäranlagen sind vorhanden. Darüber hinaus verfügt der gesamte Gebäude-komplex über eine Tiefgarage und über behindertengerechte Aufzüge.
Tiefgaragenstellplätze sowie Archivflächen können zusätzlich angemietet werden.

Lage

Der Standort verfügt mit S,-U- und Straßenbahnstationen über eine hervorragende Anbindung an den ÖPNV. Durch die nahen Bahnhöfe Friedrichstraße bzw. Lehrter Bahnhof ist auch eine schnelle und bequeme Erreichbarkeit im Regional- und Fernverkehr gegeben. Gute Einkaufsmöglichkeiten und abwechslungsreiche Gastronomie, sowie Hotels befinden sich im unmittelbaren Umfeld.

Die dargestellte Position der Immobilie ist nur eine ungefähre Angabe.

Expose anfordern

Direktanfrage

Wir bitten Sie uns für die Übersendung weiterer Informationen zu dem Objekt Ihre vollständige Geschäftsadresse sowie ihr geplantes Business Konzept mitzuteilen. Alle Ihre Daten werden streng vertraulich behandelt und dienen lediglich zur Erstellung Ihres Angebots.

Adresse:
Nachricht:
Dateiupload (PDF maximal 8MB)

Team Profile

E-Mail: info@profile-property.de
Telefon: +49 (0) 30 212 33 777
Fax: +49 (0) 30 212 33 771
Adresse: Bauhofstr. 6, 10117 Berlin
Homepage: www.profile-property.de